Wil je risicoloos bieden zonder voorbehoud van financiering of eerst de waarde van je eigen woning weten? Bel mij voor een afspraak.
Ruime tussenwoning met zonnige tuin in het hart van Klazienaveen
Ben je starter, alleenstaand of een stel en zoek je een woning met veel ruimte én mogelijkheden? Deze ruime eengezinswoning aan de Neptunusbaan 23 biedt een solide basis om helemaal naar eigen smaak te moderniseren. Met vier slaapkamers, een royale westelijke tuin en een fijne ligging is dit een kans die je niet wilt missen!
De woning ligt in een rustige straat in een prettige woonwijk. Op korte afstand vind je het winkelcentrum, meerdere supermarkten, scholen, een sportschool en andere dagelijkse voorzieningen. De uitvalswegen zijn uitstekend bereikbaar, waardoor je eenvoudig richting Emmen en omliggende plaatsen reist. Een ideale plek voor wie gemak en een prettige woonomgeving zoekt.
De lichte woonkamer (ca. 27 m²) vormt het hart van het huis en biedt volop indelingsmogelijkheden. De keuken (ca.7 m²) heeft een functionele opzet, maar dient te worden vernieuwd. De woning beschikt over centrale verwarming en een sfeervolle open haard.
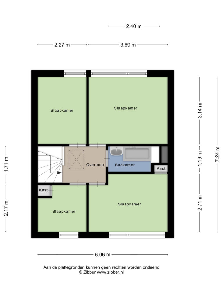
Op de eerste verdieping vind je vier slaapkamers, ideaal voor een gezin, thuiswerkplekken of hobbykamers. De badkamer is voorzien van een ligbad met douche en wastafel.
Op de zolder beschik je over royale bergruimte; hier bevindt zich ook de cv-ketel.
De zonnige achtertuin op het westen (ca. 120 m²) is een heerlijke plek om te genieten van de middag- en avondzon. Achterin de tuin staat een stenen berging met elektriciteit, perfect voor fietsen, gereedschap of opslag.
Kenmerken op een rij:
– Bouwjaar: 1963
– Woonoppervlakte: ca.90 m²
– Perceeloppervlakte: ca.198 m²
– Vier slaapkamers
– CV-Ketel Remeha Tzerra 28C, bouwjaar 2013 eigendom
– Energieklasse D
– Centrale verwarming + open haard
– Zonnige achtertuin op het westen
– Stenen berging met elektra
– Rustige en groene woonomgeving nabij alle voorzieningen
Deze woning biedt een solide basis én volop mogelijkheden om er een prachtig thuis van te maken dat helemaal bij jou past. Benieuwd naar de sfeer en potentie? Plan vandaag nog een bezichtiging en ontdek zelf wat deze woning aan de Neptunusbaan 23 te bieden heeft!
*Deze informatie is met zorg samengesteld. Aan eventuele onvolledigheden of onjuistheden kunnen geen rechten worden ontleend. Alle opgegeven maten en oppervlakten zijn indicatief.
Vrijblijvend geholpen worden door één van onze experts? Bel of mail naar ons.
Telefoon +31 591 620 097
