Beschikbaar

Emmen – Willem Grolstraat 130

Vraagprijs: € 425.000,- k.k.

Wil je risicoloos bieden zonder voorbehoud van financiering of eerst de waarde van je eigen woning weten? Bel mij voor een afspraak.

Kenmerken

Overdracht

  • Status
    Beschikbaar
  • Vraagprijs
    € 425.000,- k.k.
  • Aanvaarding
    In overleg
  • Plaats
    Emmen

Bouw

  • Soort woning
    Eengezinswoning
  • Type woning
    Vrijstaande woning
  • Bouwjaar
    1973
  • Bouwvorm
    Bestaande bouw
  • Liggingen
    Aan rustige weg, In woonwijk

Indeling

  • Woonoppervlakte
    154 m2
  • Perceeloppervlakte
    456 m2
  • Inhoud
    728 m3
  • Aantal kamers
    7
  • Aantal slaapkamers
    4
  • Aantal badkamers
    1

Energie

  • Energieklasse
    D
  • Verwarming
    CV ketel, Electrische verwarming
  • C.V.-Ketel
    Remeha avanta 35c
  • Bouwjaar C.V.-Ketel
    2017
  • Warmwater
    CV ketel, Elektrische boiler eigendom
  • Isolatie
    Dakisolatie, Muurisolatie, Vloerisolatie, Dubbelglas, HR glas
  • Combiketel
    Ja
  • Brandstof
    Gas
  • Eigendom
    Eigendom

Buitenruimte

  • Tuin
    Achtertuin, Voortuin, Zijtuin
  • Hoofdtuin
    Achtertuin
  • Oppervlakte
  • Ligging hoofdtuin
    Aan rustige weg, In woonwijk
  • Achterom
    Nee
  • Kwaliteit tuin
    Verzorgd

Bergruimte

  • Schuur / Berging
    Vrijstaand hout
  • Voorzieningen
  • Totaal aantal
    1

Parkeergelegenheid

  • Parkeer faciliteiten
    Op eigen terrein
  • Garage
    Aangebouwd steen
  • Capaciteit
    1
  • Garages
    1

Dak

  • Soort dak
    Zadeldak
  • Materiaal dak
    Pannen

Overig

  • Permanente bewoning
    Ja
  • Onderhoud binnen
    Goed tot uitstekend
  • Onderhoud buiten
    Goed tot uitstekend
  • Huidig gebruik
    Woonruimte
  • Huidige bestemming
    Woonruimte
Woonoppervlakte
154 m2
Perceel
456 m2
Aantal kamers
7
Energielabel
D

Omschrijving

Welkom aan de Willem Grolstraat 130 in Emmen.

Deze vrijstaande woning biedt 154 m² woonoppervlak, vier slaapkamers en een perceel van 456 m². Een ideale plek voor gezinnen en stellen die ruimte, privacy en comfort zoeken.

De woning ligt in een rustige en kindvriendelijke woonwijk, met scholen, speeltuinen en een sportschool op loop- en fietsafstand. Ook het centrum van Emmen en uitvalswegen zijn eenvoudig bereikbaar.

Indeling
De begane grond heeft een lichte, royale woonkamer van ca. 44 m². De separate keuken (ca. 11 m²) is praktisch ingedeeld en voorzien van een warmwaterboiler uit 2022.

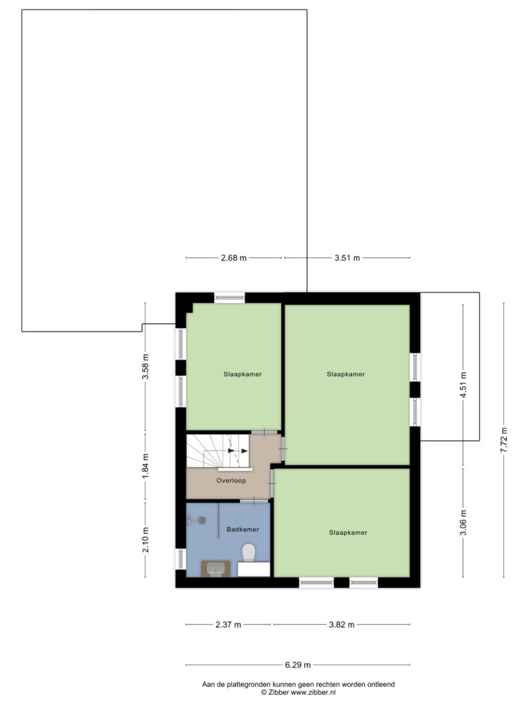
Op de eerste verdieping bevinden zich drie slaapkamers en een nette badkamer met douche, toilet en wastafelmeubel.

De tweede verdieping beschikt over een vierde slaapkamer en een ruimte ideaal als kantoor, hobbyruimte of extra berging te gebruiken.

Buitenruimte
De woning heeft een ruime, zonnige tuin op het zuiden. Het perceel van ca. 456 m² biedt volop mogelijkheden om buiten te leven en te genieten van privacy. Verder zijn er een stenen garage, een houten schuur en parkeergelegenheid op eigen terrein.

Duurzaam & Comfort
De woning beschikt over:
– 12 zonnepanelen (2022)
– CV-ketel Remeha Avanta 35c (2017)
– Airconditioning (2022)
– Glasvezelaansluiting

Dit maakt de woning comfortabel en klaar voor de toekomst. Met energielabel D is verdere verduurzaming nog mogelijk voor wie dat wenst.

Bijzonderheden:
– Bouwjaar 1973
– Woonoppervlakte 154 m²
– Perceel 456 m²
– Vier slaapkamers
– Royale woonkamer en tuin
– Garage en schuur
– Volledige buitenkant geschilderd mei 2025

Bezichtiging
Benieuwd naar deze ruime en sfeervolle woning op een fijne locatie in Emmen? Neem contact met ons op voor een bezichtiging. We laten je de woning graag persoonlijk zien.

*Deze informatie is met zorg samengesteld. Aan eventuele onvolledigheden of onjuistheden kunnen geen rechten worden ontleend. Alle opgegeven maten en oppervlakten zijn indicatief.

Binnenkijken in deze woning?
Laat het ons weten

    Woning*

    Voornaam *

    Achternaam *

    Telefoon *

    E-mail *

    Jouw vraag of bericht *



    Jouw huis kopen of verkopen?

    Vrijblijvend geholpen worden door één van onze experts? Bel of mail naar ons.
    Telefoon +31 591 620 097

    Suelmann
    Tim
    ×